Es aquest el procés de creació i construcció d´un mobilhome dissenyat en exclusiva pel Càmping la Sirène 5* d´Argèles-sur-Mer
El modul anomenat SirèneConfort te una superfície aproximada de 32m2 , amb dues habitacions,bany ,cuina,menjador i estar . Amb un interiorisme net,pur,blanc,relaxant,natural, acollidor i fresc.
esbós /sketch
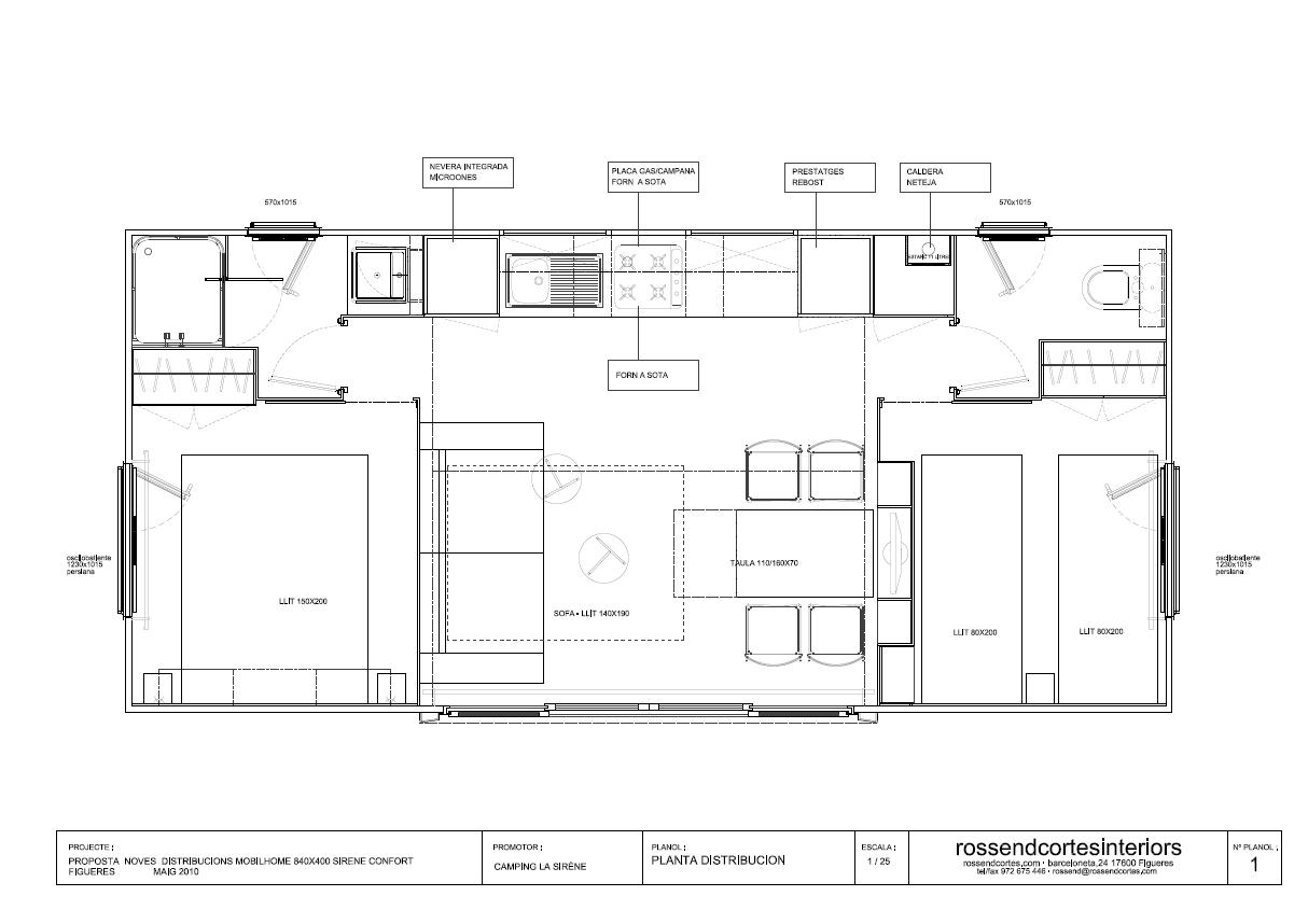
planta distribució / distribution plan
Situació / situation
It is this process of creation and construction af a mobile home designed exclusively for tht camping La Sirène * of Argèles-sur-Mer.
The module called SirèneConfort,has an area of approximately 32 m2 with two bedrooms,bathroom,kitchen,dining room and lounge. With a interior design clean,pure,white,relaxed,natural,warm and fresh.
La Sirène , route de Taxo 66702 Argèles-sur-Mer








